法兰连接阀门系列

H409黄铜法兰止回阀
技术规范:
产品型号:H14W-16T
公称压力:1.6MPa
工作介质:水、非腐蚀性液体
工作温度:-20℃≤t≤120℃

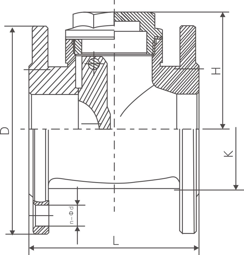
DN(mm) | NPS(in) | L | H | K | D | n-Φd |
40 | 11/2 | 140 | 81 | 110 | 150 | 4-18 |
50 | 2 | 149 | 93 | 125 | 165 | 4-18 |
65 | 21/2 | 164 | 99 | 145 | 185 | 4-18 |
80 | 3 | 192 | 107 | 160 | 200 | 8-18 |
100 | 5 | 220 | 120 | 180 | 220 | 8-18 |
注:密封封料:黄铜
上一个:GL603黄铜法兰过滤器
下一个:H44W-16T黄铜法兰止回阀