地热暖通管道专用系列

Q801测温锁闭过滤器球阀
技术规范:
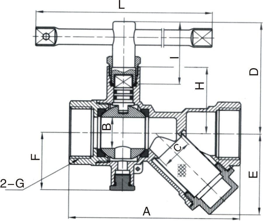
产品型号:Q11F-16T
公称压力:1.6MPa
工作介质:水、非腐蚀性液体、饱和蒸汽(≤0.6MPa)
工作温度:-10℃≤t≤110℃
管螺纹标准:符合ISO228标准

| DN(mm) | A | B | C | D | E | F | G | H | I | J |
20 | 78.7 | 12.5 | 12 | 37.6 | 40.2 | 98 | 3/4 | 36.3 | 32 | 84 |
25 | 84 | 14 | 14 | 41 | 41 | 98 | 1 | 42.5 | 40 | 160 |
32 | 107 | 19 | 19 | 53.1 | 44.3 | 98 | 11/4 | 48.8 | 40 | 160 |
上一个:Q261黄铜过滤器球阀
下一个:Q263 磁性锁闭过滤球阀